LEI Nº 1.695, DE 13 de janeiro de 2025

 

ALTERA A LEI Nº 1.468/2022 QUE DISPÕE SOBRE A ÁREA DE PRESERVAÇÃO PERMANENTE (APP) DE CURSOS HÍDRICOS EM ÁREAS URBANAS CONSOLIDADAS.

 

O PREFEITO MUNICIPAL DE VENDA NOVA DO IMIGRANTE, E. SANTO, no uso de suas atribuições legais faz saber que a Câmara Municipal aprovou e eu sanciono a seguinte; Lei:

 

Art. 1º Fica alterada a Lei 1.468/2022 que dispõe sobre a Área de Preservação Permanente (APP) de cursos hídricos em áreas urbanas consolidadas, especificamente em seu no art. 3º, paragrafo único; revogando o §1º do art.4º; alterando na sua totalidade o artigo 5º; renumerando o art. 6º para art. 9º; renumerando o art. 7º para art. 10 e acrescentando o art. 8º, 9º e 10, passando a vigorar com a seguinte redação:

 

Art. 3º ........................................................................................

 

Parágrafo único. A medição da largura da faixa marginal inicia-se na borda da calha do curso hídrico, conforme exemplificado no Anexo I.

 

Art. 4º...........................................................................................

 

§ 1° Não será permitida a ocupação de áreas consideradas com risco de desastres; REVOGADO

 

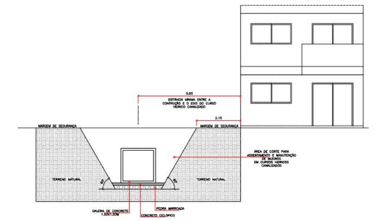
Art. 5º A largura da faixa marginal dos cursos hídricos canalizados (manilhados), mapeados no Diagnóstico Socioambiental aprovado pela Comissão de Estudos de Avaliação de APPs em Áreas Urbanas Consolidadas e pelo Conselho Municipal de Meio Ambiente e Saneamento, deverá respeitar a faixa mínima não edificante de 05 metros para cada um dos lados da canalização, a contar do seu eixo, conforme exemplificado no Anexo II.

 

Parágrafo único. Não é permitida a realização de novas canalizações, salvo nas hipóteses de utilidade pública, de interesse social ou de baixo impacto ambiental previstas na Lei Federal N°12651/2012, mediante procedimento de licenciamento ambiental junto ao órgão competente.

 

Art. 6° Quanto às áreas já consolidadas e com risco de inundação mapeadas no Diagnóstico Socioambiental, para edificação de novas construções recomenda-se que não ocorra a ocupação do primeiro pavimento (térreo) com moradia ou que seja utilizada outra alternativa técnica apresentada por profissional habilitado que minimize o risco de inundação.

 

Art. 7° As áreas de Preservação Permanente (APPs) localizadas nas Áreas Urbanas Consolidadas (AUCs) definidas pelo Diagnóstico Socioambiental encontram-se mapeadas no Anexo III.

 

Art. 8° Integram esta lei os seguintes documentos, sob a forma de anexos:

 

Anexo I – Croqui demonstrativo da medição da APP a partir da borda da calha do curso hídrico;

 

Anexo II – Croqui exemplificativo da faixa de proteção não edificante das canalizações de cursos hídricos;

 

Anexo III - Mapas de APPs e AUCs nos Perímetros Urbanos de Venda Nova do Imigrante.

 

Art. 9º Esta Lei entra em vigor na data de sua publicação.

 

Art. 10 Revogam-se as disposições em contrário.”

 

Art. 3° Esta Lei entra em vigor na data de sua publicação.

 

Art. 4º Revogam-se as disposições em contrário.

 

Venda Nova do Imigrante/ES, 13 de janeiro de 2025.

 

DALTON PERIM

Prefeito Municipal

 

Este texto não substitui o original publicado e arquivado na Câmara Municipal de Venda Nova do Imigrante.

 


ANEXO I - CROQUI DEMONSTRATIVO DA BORDA DA CALHA DO CURSO HÍDRICO

 



ANEXO II -  CROQUI EXEMPLIFICATIVO PARA MANUTENÇÃO DE CANALIZAÇÕES DE CORPOS HÍDRICOS COM A

FAIXA MARGINAL A SER RESPEITADA

 

 

ANEXO III - MAPAS DE APPs E AUCs NOS PERÍMETROS URBANOS DE VENDA NOVA DO IMIGRANTE APP E AUC - VARGEM GRANDE

 

 

APP E AUC – BRAMBILA

 

 

(Redação dada pela Lei complementar nº 1.768/2026)

APP E AUC – CAXIXE

 

 

APP E AUC – SEDE

 

 

APP E AUC – CAMARGO

 

 

APP E AUC – CHÁCARAS CALIFÓRNIA

 

 

APP E AUC – SÃO JOÃO DE VIÇOSA

 

 

APP E AUC – VIÇOSINHA

 

 

APP E AUC – BRAÇO DO SUL

 

 

APP E AUC – SÃO JOSÉ DO ALTO VIÇOSA